导航切换

保温装饰一体板施工组织技术方案


一、保温装饰板基本要求
 
(一)适用范围
 
1、适用于我国寒冷地区、夏热冬冷地区、夏热冬暖地区的民用建筑、工业建筑的节能装饰及既有建筑的节能改造和墙面翻新(新建、扩建、改建,工业和民用建筑的承重或非承重外墙)。
2、保温装饰板适用于有节能要求的钢筋混凝土、混凝土空心砌块、烧结普通砖、烧结多孔砖、灰砂砖和炉渣砖等材料构成的砌体结构的外墙保温工程。
3、抗震设防烈度≤8度的地区。
 
 
(二)专项设计要求
 
1、保温装饰板的品种、规格、颜色、图案和主要技术性能。
2、勾缝胶等所有辅助材料的技术性能。
3、保温装饰板采用以粘贴为主,机械固定辅助方法施工。
4、对窗台、檐口、装饰线、雨蓬等造型部位,应采用防水和排水构造。
5、墙面阴阳角处做异形板施工时,纵向和横向的轮廓线在折角时尺寸应大小一致。
6、同时采用保温装饰板与其他外墙装饰材料时应做好相接面的处理。
7、交叉作业施工前必须合理安排施工先后顺序及后期处理。
 
二、施工准备
 
(一)现场作业环境要求
 
1、不得在雨天、寒冷(5℃以下)、气温较高时、风速偏高(5级以上)等天气条件下施工。
2、在气温较高时施工,保温装饰板在粘贴后4小时以内,应避免板面受阳光直晒,必要时应搭设防晒布,遮挡已施工的保温装饰板。
3、避免尚未凝固的材料受到相对恶劣的气候条件的直接作用,特别是避免雨水的冲刷,必要时应对新施工的墙面加以保护。
4、施工期间以及完工后24h内,基层及环境空气温度应不低于5℃。
5、施工时,应随时了解当地气象情况,雨前(4h以内)、雨后(墙面尚未硬化)不能操作,以防止雨水的冲刷,造成质量缺陷。
 
(二)基层墙体质量要求
 
1、基层墙体抹灰层表面应不起鼓,不掉砂,无剥离;抹灰层采用水泥砂浆(配合比为1:3),标准基层厚度为20-30mm,如果抹灰层的厚度小于10mm,应在砂浆里添加水泥改性剂,以防止起壳、开裂、脱层,抹灰层的养护期必须大于15天。
2、基层墙体抹灰层表面质量应平整、立面垂直,表面平整度用2M靠尺测量,亮缝间隙应小于5mm。
3、基层墙体抹灰层阴阳角表面应垂直、方正和无缺棱掉角,直线度用2M靠尺测量,亮缝间隙应小于5mm。
4、基层墙体属于隐蔽工程,需提供中间交接验收记录,并且有现场监理确认。
 
三、施工准备要求
 
1、材料准备
 
1.1、主材:保温装饰板。
1.2、辅材:胶粘剂、扣件。
1.3、配件:高耐候硅酮胶、泡沫棒、美纹纸等。
 
2、采用吊篮或脚手架施工,具体要求如下:
 
2.1、吊篮安装:安装吊篮必须符合安全规程,吊篮内侧面必须安装弹性隔离物,以避免吊篮升降时,对已安装的保温装饰板造成损坏。
2.2、脚手架的安装:脚手架的架管及管头与墙面间的距离为300~450mm,以便施工。
 
3、人员机具要求:
 
3.1、现场施工机具要求:木工裁板机(无机树脂板面板系列专用,要求:电机功率4KW以上,转速不低于4000r/min,金钢石锯片,锯片直径大于300mm)、开槽机(锯片厚度应小于等于1.8MM),手提切割机(功率500W以上,合金有齿锯片,锯片直径200mm~250mm)、平抹子、灰浆托盘、调整吸盘、灰桶、弹线墨斗、拉线、线锥、手提电动搅拌器、打胶枪等。
3.2、施工现场检测设备:2M靠尺、塞尺、垂直仪、钢尺、卷尺、方尺等。
3.3、人员要求:
a)每班组配备施工人员30人(按10000㎡,60天施工期计算),其中组长1人,负责全面调度、安全措施、施工质量与进度的现场管理工作。
b)施工人员在施工前应进行产品、工艺、施工步骤、施工质量与安全管理的培训。
c)现场人员配备与工作职责

1f093afd24be8dd74baccea75ffd62f1.jpg
 
注:人员配置按现场施工条件和进度要求,及时合理安排。
 
4、作业条件
 
4.1、保温装饰板尺寸及数量与排板图所规定一致,每块板的背后标注具体的应用部位及编号。下料单标注的板材的尺寸为成品可视板面(不含缝隙)的实际尺寸。
4.2、主体结构墙体基层处理完成。
4.3、墙上的电器、消防、排水管设施已经完成,并已经做好隐蔽项目预检验收。
 
四、保温装饰板现场施工工艺
 
(1)工艺原理
 
保温装饰板通过粘贴+机械固定的方式安装于外墙上。在安装的过程中,要根据板材的规格采用科学严密的施工组织,确保板材加工的合理、固定可靠、装饰效果完美。
 
(2)工艺流程

d67587bc4287caa393781cc867dab822.jpg
 
 
1、对基层墙体的检查和处理
1.1、基层抹灰表面平整度偏差不应大于5mm,竖向垂直偏差不应大于5mm,未达到标准的严禁盲目开始施工。
1.2、基层抹灰墙面以10M长为检测尺寸段,阳角和装饰带均要在10M以上拉线检查,大平面还须在对角线拉线检查,再通过对高处进行凿平,低处采用抹灰找平的方法使墙面平整度达到允许偏差要求。
1.3、用高强度水泥砂浆填充找平,并将墙面上的灰尘、污垢、已粉化的涂料和腻子层等妨碍粘贴质量的物质清除干净。
1.4、基层墙面采用以上的方法处理后,必须粘贴小样进行检验,其规格不得小于300mm×200mm,现场检验方法如下:
1.4.1、保温装饰板粘贴24小时以后形成初粘,取消定位件后不会自行产生位移。
1.4.2、保温装饰板粘贴5~7天后,检验人员徒手用力不能将样板从墙面上拉掉,可视为胶粘剂调配合格并且基层强度可以满足施工要求。
1.4.3、保温装饰板粘贴28天后,用拉拔仪检测,抗拉强度应≥0.1mpa,并且破坏部位是保温层,即为合格。如果是墙体基层破坏,则必须对墙体基层重新进行处理。(保温装饰板粘贴28天后,粘结层粘结强度达到设计要求)。
 
2、基层分格弹线

2.1、应按设计要求进行排板,并确定分格缝的宽度。
2.2、从门窗或阳角处开始弹出基准控制线,作出标记。
2.3、弹线工作应由施工人员完成,若条件不允许则弹线人员必须与施工人员完成交接。
2.4、弹线时应将缝线弹出,以便在安装板材时核对尺寸和位置,减少误差。
 
3、墙体表面洒水润湿

当天气较热,墙面干燥时,施工前应用清水先将墙面适当润湿,以保证不会因胶粘剂中的水分过快蒸发而影响粘接质量。
 
4、板背面点式布胶

4.1、粘接砂浆的使用
4.1.1、选用适当的容器(18L手提铁桶或塑料桶)先将粘接砂浆倒入容器内,然后将清水倒入容器,一边倒一边搅拌,充分搅拌均匀。再根据现场气温高低适当增减清水的添加量(以刮涂流畅,不流坠为宜)。
4.1.2、粘接砂浆应随用随搅拌,已搅拌好的粘接砂浆必须在2-4小时内用完。
4.2、粘结点分布图及要求如下:

9226ed5fbdd94a313c4e062989222b9e.jpg
 
根据点粘分布图把胶粘剂点涂在背板面上,粘结面积不得小于40%,建筑物高度在50m以上的,粘结面积宜达到45%以上。
 
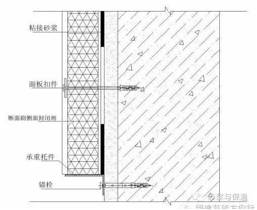
5、安装固定

5.1、面板扣件安装
根据扣件分布图,用电锤在规定位置钻出8mm的孔,用于安放膨胀塞,孔的深度要求穿过砂灰层,进入砌体25mm以上。再将扣件插入板内,用螺栓将扣件拧紧。

70f4b079f80d032d82955b7c95c8bc6e.jpg
 
5.2、承重托件安装

801596921c6723e2bd61bea063704b12.jpg
 
5.3、保温装饰板为面板中间四周开槽,深度为5mm,宽度为2mm,扣件安装与槽内。

fddc39806a265918a616d3ed6ce87425.jpg

 
5.4、接缝节点图

7a9ac5eac62eb98f5b72bf352f3df3cf.jpg
 
5.5、板材上墙前应再次检查尺寸是否合适(核对墨线),有问题的板材不得上墙。
5.6、板材揉贴时应逐渐按压到平整度要求的合适位置,严禁按压低了再拉出,造成虚粘。
5.7、在保温装饰板粘贴上墙12小时~24小时内,应及时用2M靠尺复查板面平整度。
 
6、分格缝处理

6.1、清除分格缝端面的飞边毛刺及打胶部位上多余的胶粘剂。
6.2、在分格缝之间填塞聚苯乙烯泡沫条,填塞高度距板面为4~6mm。
6.3、按照分格缝设计的宽度弹线(8~10mm),然后用纸粘带附线贴实,再刮涂优质弹性耐候勾缝胶,耐候胶应覆盖板面宽度2-3mm,打胶深度3-5mm,涂胶后应立即揭去纸粘带。分格缝宽度8~10mm,板面中间开槽5mm,面板胶缝宽度为16~20mm。

7、安装排气塞

待勾缝胶打完24小时后,在十字交叉处或板缝中间按每3~5m间距钻1个孔,并在孔内和排气塞四周打上勾缝胶后嵌入孔中即可。要求排气孔朝下,以防进水。
 
8、揭保护膜板面清洁

8.1、揭保护膜应在贴板结束后一个月内进行,以免揭膜困难。
8.2、清洁板面应在撤架前进行。
 
9.竣工验收

9.1、主控项目
9.1.1、保温装饰板的规格和各项技术指标以及胶粘剂、机械固定件的质量均应符合要求。
9.1.2、保温装饰板与结构墙面必须粘接牢固无松动现象。
9.1.3、保温装饰板保温层厚度应符合设计要求。
9.1.4、保温装饰板粘贴面积应符合要求。
9.2、一般项目
9.2.1、外墙保温装饰板安装的允许偏差(符合GB50210-2001规定):

00c0ab746218debcfd1c1d35534278e9.jpg
 
9.2.2、外墙保温装饰工程应平整、洁净、无歪斜和裂缝。
9.2.3、在距建筑物保温装饰板面正前方5m外,目测角度为90°±20°内观测,色泽应均匀一致,无发花现象。
9.2.4、分格缝应横平竖直,宽窄一致。VRD保温装饰板边缘应覆盖1-2mm密封胶,并达到密封要求。
9.3、竣工验收应提交下列文件
9.3.1、外墙保温系统的设计文件、图纸会审、设计变更和洽商记录;
9.3.2、施工方案;
9.3.3、VRD外墙保温装饰系统的形式检验报告及其主要组成材料的产品检验报告、产品出厂合格证、进场复检报告和现场验收记录;
9.3.4、施工技术交底文件;
9.3.5、施工工艺记录及施工质量检验记录;
9.3.6、其他必须提供的资料。
 
(3)操作工艺其它要点
 
1、墙面处理

对主体结构面层进行检查,并清理。
 
2、测量放线

2.1、测量放线原则:根据排版图进行、确保经济原则、确保美观原则、确保安全原则。
2.2、测量放线技术要求:
按装饰设计图纸要求,安装前选用测量控制点,事先用经纬仪打出大角两个面的竖向控制线,在大角上下两端固定挂线的角钢,用钢丝挂竖向控制线,并在控制线的上下作出标记。画出竖向控制线,随时检查垂直挂线的准确性,弹横向水平通线,至少三根,如果通线长超过5米,则用水平仪抄水平。并在墙面上弹出板材安装的每个角码位置点的具体位置。
2.3、测量放线控制范围:
1)垂直度:高度小于30M的误差应该保证在5MM内;大于30M小于60M的允许误差应该保证在10MM内;大于60M小于90M的允许误差应该保证在15MM内。(经纬仪检查)
2)水平度:层高小于3M的应该小于2MM;层高大于3M的应该小于3MM。
3)直线度:长度在30M内的应该保证在5MM内;长度大于30M小于60M的
允许误差应该保证在10MM内;大于60M小于90M的允许误差应该保证在15MM内。(用直线加钢尺检查)
2.4、检验方法:
水平检测采用水准仪测量,如果采用水平管来施工必须要多次进行符合后才能施工,以便确保施工质量。垂直度采用经纬仪测量,如采用线锤吊线则一定要根据高度来确定所使用线锤的重量,以便确保垂线不受风力的影响。且也应经过多处复核才能进行下一道工序。
 
3、裁板前必须再次测量现场尺寸,按实际尺寸裁板。
 
4、墙角与窗的要求

4.1、基层墙面阴阳角要垂直、顺直,窗洞四边应做到横平竖直。
4.2、外墙、窗户、栏杆及洞口均要求采取切实的保护措施。外墙栏杆、窗户较多的,须投入充足的人力、物力加以保护。
 
5、保温装饰板安装
 
5.1保温装饰板安装前自检要求

        保温装饰板在安装的前必须先认真检查尺寸误差是否在所要求的范围(误差必须小于1MM,2M靠尺和塞尺检测),板材的外在质量是否合格,如果属于非合格品严禁上墙使用,(检查内容包括色差;平整度;板面层是否有划痕等影响外观及使用功能的项目)。
以下是每平方米保温装饰板的表面质量和检验方法应符合下表

32c8658346e1a43d4f018a01eeec67fb.jpg

5.3保温装饰板安装技术要求

1)清理板材粘接面污渍,做到无油渍、无污渍。
2)定尺板材在安装前必须认真检查每块定尺板材是否存在质量问题,对于有问题的定尺板材必须挑拣出来(如:有油漆脱落;板角变形;有严重划痕;严重色差;定尺板材厚度不符合设计要求等)。
3)定尺板材在安装时必须同时考虑特殊部位的收口处理问题。如:窗口边要注意防渗漏问题,窗口收边的美观问题,能否实现大批量安装等。
4)最后,检查板边缘漆面有无在安装过程中受损的情况。如有,则先将公司专用漆(此漆随货免费提供)按比例配好,然后用毛笔仔细的在受损部位加以修补(修完后最好用电吹风吹几分钟)。
5)固定好后,去掉板材上的保护膜,填塞泡沫棒、打耐候勾缝胶,清理现场。
 
5.4控制范围

1)垂直度:高度小于30M的误差应该保证在5MM内;大于30M小于60M的允许误差应该保证在10MM内;大于60M小于90M的允许误差应该保证在15MM内。(经纬仪检查)
2)水平度:层高小于3M的应该小于2MM;层高大于3M的应该小于3MM。
3)直线度:长度在30M内的应该保证在5MM内;长度大于30M小于60M的允许误差应该保证在10MM内;大于60M小于90M的允许误差应该保证在15MM内。(用直线加钢尺检查)
 
5.5检验方法:

1)定尺板材安装平整度:用1米靠尺和塞尺检查,应该小于3MM内。
2)定尺板材安装垂直度:用1米靠尺和塞尺检查,应该小于3MM内。
3)定尺板材安装垂直度:用1米水平尺检查,应该小于3MM内。
4)相邻板材角错位:应该保证在1MM内。用水平尺检查。
5)阳角方正度:应该保证在2MM内。用角尺;钢尺检查。
6)接缝高低差:因该保证在1MM内。用钢尺检查。
7)接缝直线度:应该保证在5M内误差在2MM内。拉直线用钢尺检查。
 
施工种类

“湿贴”一体板施工程序

(1)、基层墙体处理
粉刷层应平整、牢固、无空鼓、开裂现象。墙面平整,达到中级抹灰验收标准。
(2)、分格放线、打孔
(3)、背板涂抹粘贴砂浆
(4)、安装一体板
(5)、安装蝶锚挂件
(6)、用密封胶或勾缝腻子勾缝
(7)、清洁表面

“挂贴一体板施工要点

(1)、基层墙面处理:
对于墙面上的污物、松软空鼓的抹灰层及油渍等,均应彻底铲除干净,对破损的抹灰层必须修补整平。长有苔藓的旧墙面,要用杀虫剂彻底清洗。新建建筑外墙抹灰应符合规范要求。
(2)、涂刷界面砂浆:
用滚刷或扫帚将界面砂浆均匀涂刷或机械喷涂。不得漏刷,拉毛不宜太厚。
(3)、聚合物粘结砂配制:
粘接砂浆:水=4.5:1(重量比)的比例加入水(此为参考比例)使用电动搅拌器充分搅拌均匀,静置5-10分钟,再次搅拌即可使用,搅拌好的砂浆最好在2小时内用完,严禁将已凝固的砂浆二次搅拌再投入使用。
(4)、根据图纸符合尺寸、墙面放线:
在侧墙、顶板处根据保温装饰板厚度吊垂直、套方、弹厚度控制线,并在墙面上弹保温装饰板安装控制线。
(5)、安装蝶锚:
应先将蝶锚片按设计和施工放线位置锚入基层墙体,一体板安装就位后,随即安装蝶锚挂件。安装挂件要与装饰板连接牢靠。安装时不得移动、松动已粘接好的装饰板。以免影响粘接砂浆的强度。
(6)、密封胶或勾缝腻子勾缝:
嵌缝时先用保温材料填缝,再用建筑耐候密封胶或勾缝腻子勾缝,建筑耐候密封胶或勾缝腻子最薄处不应小于3mm厚,
胶缝应勾成饱满、密实、连续、均匀、无气泡的凹形沟槽。
(7)、去保护膜、清洁表面:
密封胶或勾缝腻子干燥后掀掉保护膜,对板面进行清洗,并谨防划伤板面。
(8)、验收:
去保护膜、清洁表面后,检查板面平整、垂直和阴阳角方正。对不符合要求的及时更换。
一体板湿贴的作业条件

1、外墙土建墙体工程平整度应达到验收要求,外门窗口安装完毕,经有关部门验收合格。
2、门窗边框与墙体连接应预留出节能装饰板的厚度,缝隙应分层填严密,做好门窗保护。
3、外墙面上的雨水管卡,预埋铁件,设备穿墙管道等提前安装完毕,并事先与节能装饰板安装协调配合。
4、施工用吊篮和双排外脚手架搭设应牢固可靠,符合相关规范、规程要求。脚手架横竖杆与墙面、墙角距离适度,脚手板铺设与安装分格相适应。
5、预置混凝土外墙板接缝位置应按土建施工图及施工验收规范要求提前处理到位。
6、湿贴系统作业时环境温度不宜低于5℃,冬季施工粘接剂须采取防冻措施,干挂系统不作上述限制。风力大于5级停止作业,安装时风速不宜大于10m/S。雨季施工应做好防雨措施。

1、湿贴一体板施工程序

(1)、基层墙体处理
粉刷层应平整、牢固、无空鼓、开裂现象。墙面平整,达到中级抹灰验收标准。
(2)、分格防线
(3)、背板涂抹粘结砂浆
(4)、粘贴节能装饰板
(5)、用靠尺检查平整度
(6)、用密封胶或勾缝腻子勾缝
(7)、清洁表面

2、湿贴系统施工要点

(1)、基层墙面处理:对于墙面上的污物、松软空鼓的抹灰层及油渍等,均应彻底铲除干净,对破损的抹灰层必须修补整平。长有苔藓的旧墙面,要用杀虫剂彻底清洗。新建建筑外墙抹灰应符合规范要求。
(2)、涂刷界面砂浆:用滚刷或扫帚将界面砂浆均匀涂刷或机械喷涂。不得漏刷,拉毛不宜太厚。
(3)、聚合物粘结砂配制:粘结砂浆:水=4.5:1(重量比)的比例加入水(参考比例)使用电动搅拌器充分交办均匀,静置5-10分钟,再次搅拌即可使用,搅拌好的砂浆在2小时内用完,严禁将已凝固的砂浆二次搅拌再投入使用。
(4)、根据图纸复核尺寸、墙面放线:在侧墙、顶板处根据保温装饰板厚度吊垂直、套方、弹厚度控制线,并在墙面上弹保温装饰板安装控制线。
(5)、粘贴一体板:板背涂抹粘结砂浆面积≥40%板背面积,涂好粘结砂浆的板应立即平粘到基层墙体,并在墙面上滑动就位,操作时应做到轻柔、均匀地挤压,以保证粘贴到墙面的装饰板表面平整度达到要求,并随时用一根2.0m的靠尺进行整平度校正。
(6)、密封胶或勾缝腻子勾缝:嵌缝时先用保温材料填缝,再用建筑耐候密封胶或嵌缝腻子勾缝,建筑耐候密封胶或嵌缝腻子最薄处不应小于3㎜厚,
胶缝应勾成饱满、密实、连续、均匀、无气泡的凹形沟槽。
(7)、去保护膜、清洁表面:密封胶后勾缝腻子干燥后掀掉保护膜,对板面进行清洗,并谨防划伤板面。

微信公众号